After Shopping

Verdichtung durch Rückbau

Laurenz Steixner

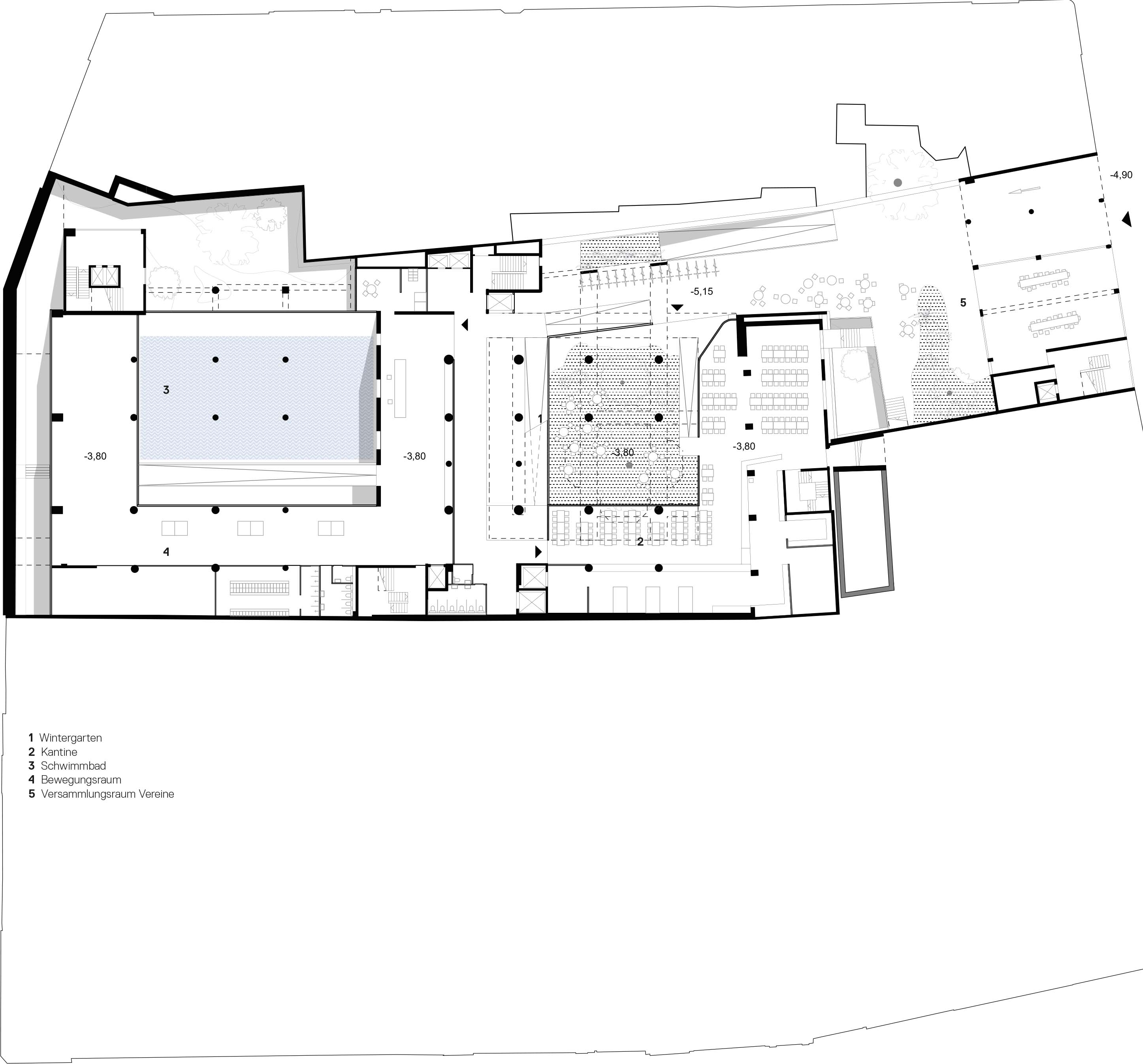
Mit bis zu 70.000 Passant_innen pro Tag ist die Mariahilfer Straße die meistbesuchte Einkaufsstraße Wiens. Um 1900 entstanden hier die großen Warenhäuser – Gerngross, Herzmansky, Esders und das Kollektivkaufhaus Mariahilfer Zentralpalast. 1974 eröffnete mit dem Generali Center die erste Wiener Shoppingmall, und 2015 wurde die Mariahilfer Straße durch den Umbau zur Fußgängerzone selbst zu einer Mall.Heute rütteln Onlinehandel, steigende Mieten und ein sich wandelndes Konsumverhalten am Konzept des stationären Einzelhandels. Monofunktionale Kaufhäuser sind vom Zerfall bedroht, und nach Jahrzehnten des Wachstums ergeben sich somit als nahes Zukunftsszenario Lücken im städtischen Gefüge. Während andere Einkaufshäuser an der Mariahilfer Straße schon im Prozess des Flächenrückbaus sind, hat das Generali Center mit seinem letzten Umbau 2016 sein Maximum an Flächenausnutzung erreicht.In dieser Arbeit wird die ehemalige Shoppingmall zum Flagship einer neuen Typologie: ein Haus als soziale Infrastruktur, das öffentliches Programm anbietet und neue Verbindungen in den Stadtraum schafft. Durch den Rückbau werden räumliche Ressourcen freigesetzt, die kleinteilige Strukturen im dicht verbauten Stadtgebiet nicht bereitstellen können. Sport, Kultur, Bildung, Nahversorgung und Soziales verdichten sich hier zu einem hybriden Baustein – ein Haus für alle als Zeichen einer Stadtgemeinschaft jenseits von Konsum und maximaler Rendite.Alle hier hochgeladenen Inhalte sind das eigene Werk der Absolventin oder des Absolventen.




Studiengang
Architektur
Betreuer*in
Senior Scientist Dipl.-Ing. Dr.techn. San-Hwan Lu
Institut für Architektur und Entwerfen
Forschungsbereich Hochbau, Konstruktion und Entwerfen
Abschluss
06/2024