Fokus Spätmoderne

Perspektiven für die ehemalige Fernsprechzentrale in Józsefváros, Budapest. Ein denkmalpflegerisches Gesamtkonzept

Zsófia Arnhoffer

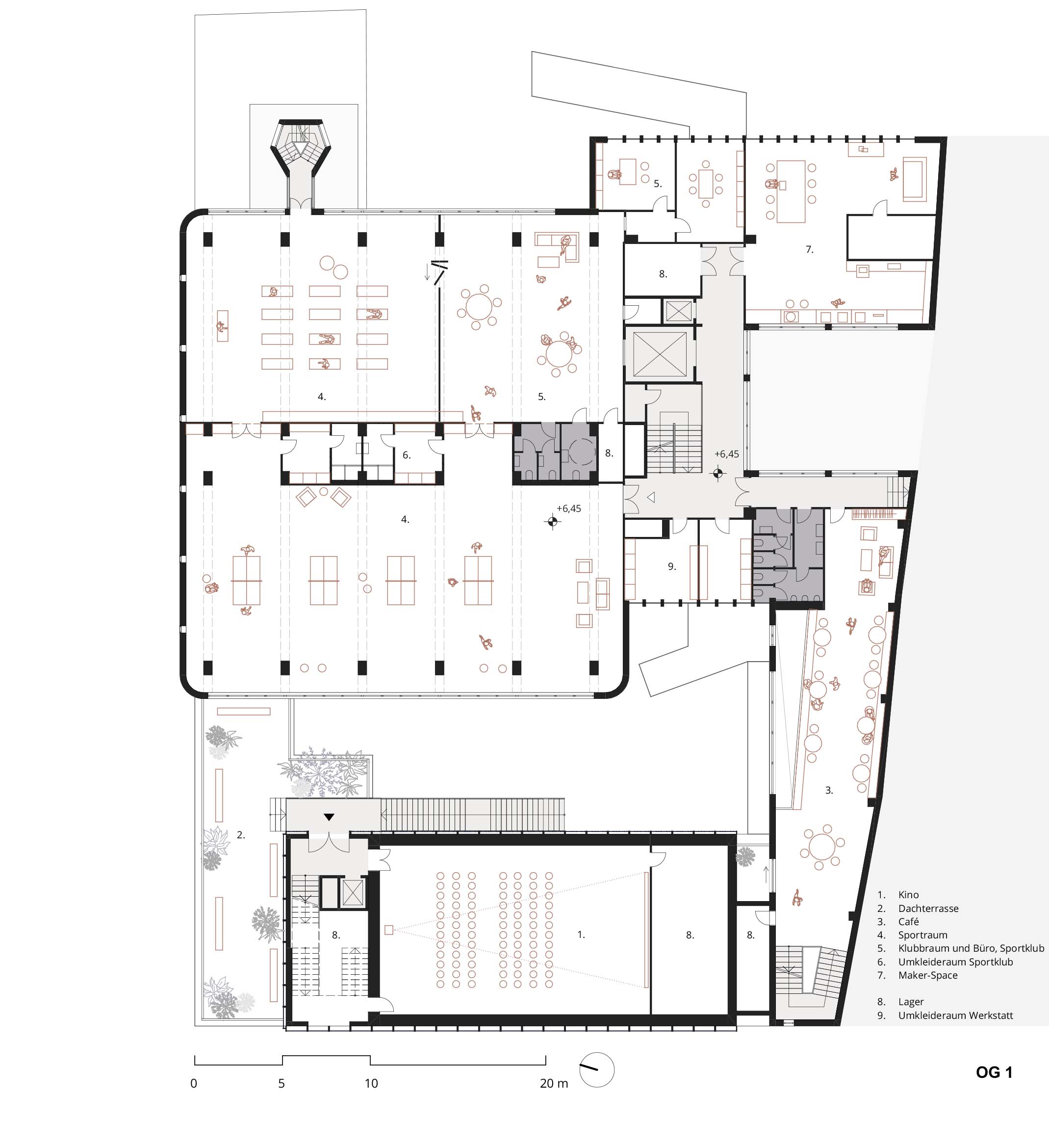
Die Diplomarbeit befasst sich mit der ehemaligen Fernsprechzentrale im Budapester Stadtteil Józsefváros, die Ende der 1960er-Jahre nach Plänen des Architekten Rudolf Cleve als Erweiterung eines späthistoristischen Gebäudes errichtet wurde.In den 1960er-Jahren wurde der Ausbau städtischer Umspannwerke, Fernsprechzentralen, Funkhäuser und Fernsehtürme aufgrund der steigenden Nachfrage notwendig. Neben der reinen Funktionalität war auch der innerstädtische Kontext von Bedeutung, weshalb diese Gebäude eine höhere architektonische Qualität aufweisen sollten. Mit der Einführung digitaler Telekommunikationstechnologien verlor der Gebäudekomplex um die Jahrtausendwende seine ursprüngliche Funktion. Während das denkmalgeschützte Hauptgebäude in ein Hotel umgewandelt wurde, steht der spätmoderne Zubau seit einigen Jahren leer und ist vom Verfall bedroht. Die Frage nach einer langfristigen neuen Nutzung ist weiterhin offen.Anhand dieses Fallbeispiels wird der fachliche und öffentliche Diskurs über das umstrittene Erbe der Nachkriegsmoderne in Ungarn analysiert und die notwendige (Neu-)Bewertung dieses architektonisch, zeithistorisch und auch gesellschaftlich wichtigen Bestandes thematisiert. Die Arbeit zeigt die Relevanz der Fernsprechzentrale in Józsefváros auf und welchen Mehrwert ihr Erhalt bieten könnte.Die Analyse des Bestandsgebäudes mündet in eine Einordnung in die Architekturentwicklung der Moderne in Ungarn sowie in eine denkmalpflegerische Bewertung des Bestandes. Darauf aufbauend werden ein denkmalpflegerisches Konzept erarbeitet, mit einem Konzept für eine mögliche zukünftige Nutzung des Gebäudekomplexes abgestimmt und die erforderlichen baulichen Maßnahmen definiert.Alle hier hochgeladenen Inhalte sind das eigene Werk der Absolventin oder des Absolventen.




Studiengang
Architektur
Betreuer*in
MMag. Dr.in techn. Dr.in Birgit Knauer und Univ.Ass. Alessandro Rintallo MSc
Institut für Kunstgeschichte, Bauforschung und Denkmalpflege
Forschungsbereich Denkmalpflege und Bauen im Bestand
Abschluss
11/2024