Kreislauffähigkeitspotenzial von Holzhausbauten in Theorie und Praxis

Bauteilfügung, Datenmodelle und technische Grundlagen

Alexander Ladentrog

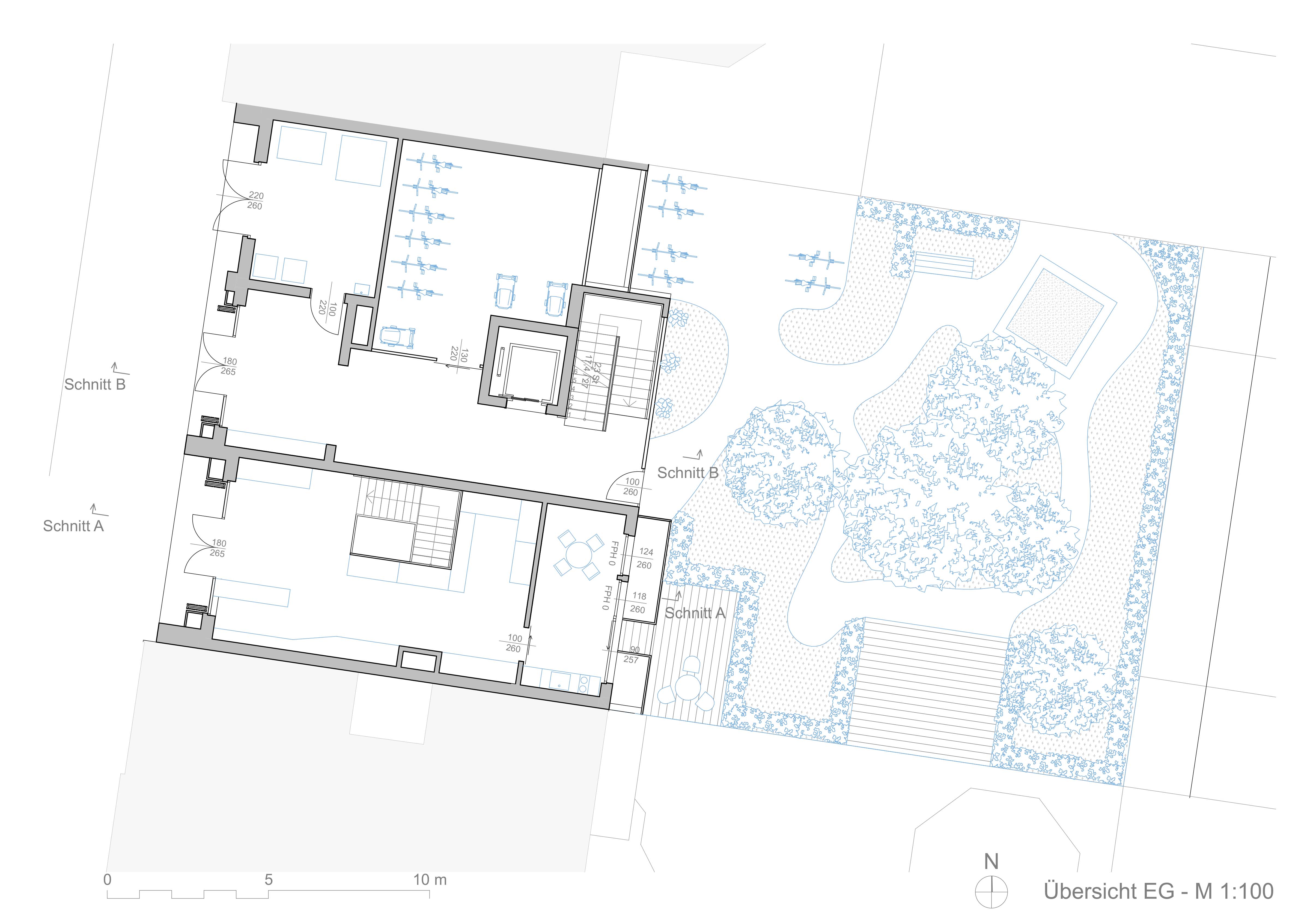
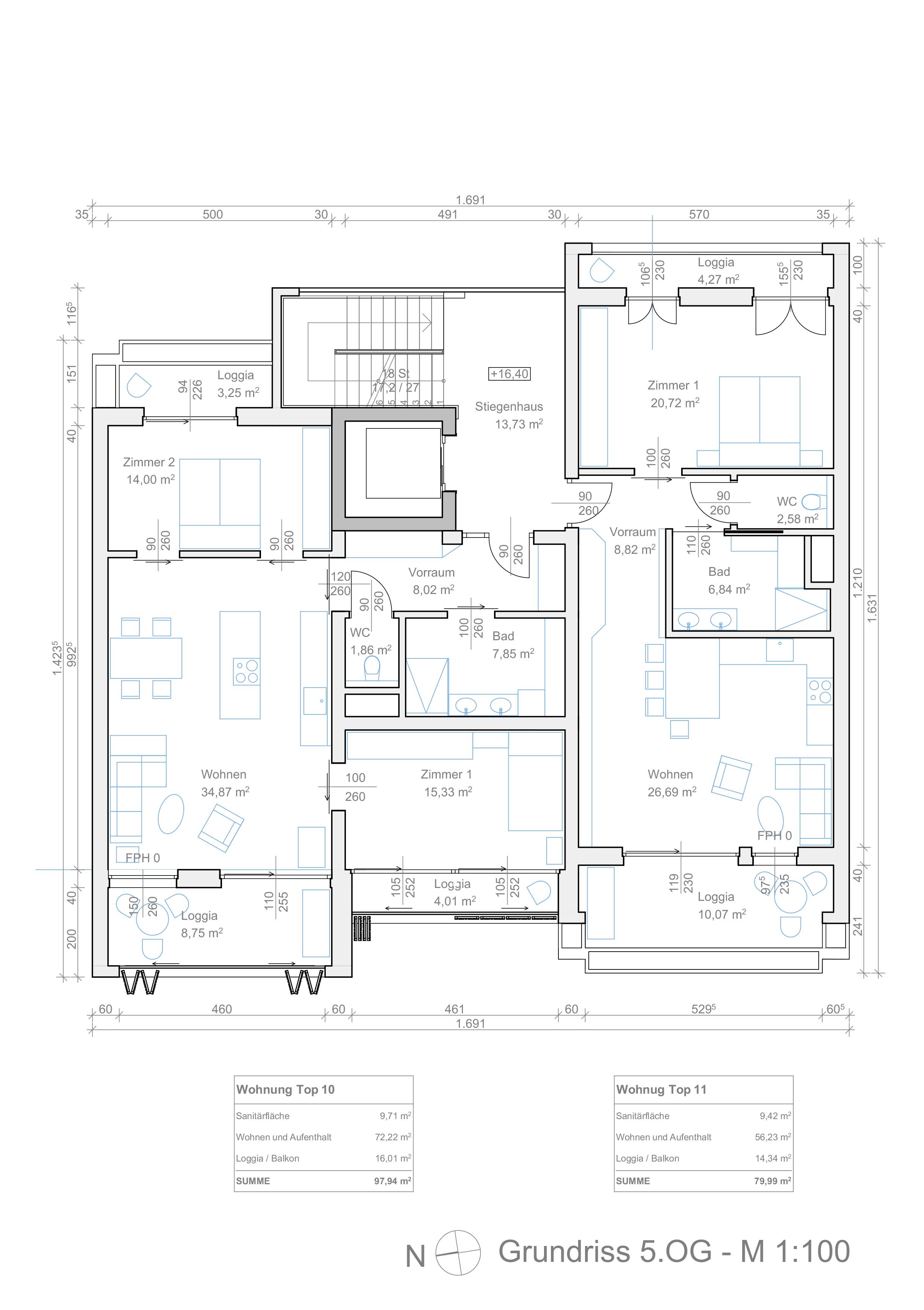
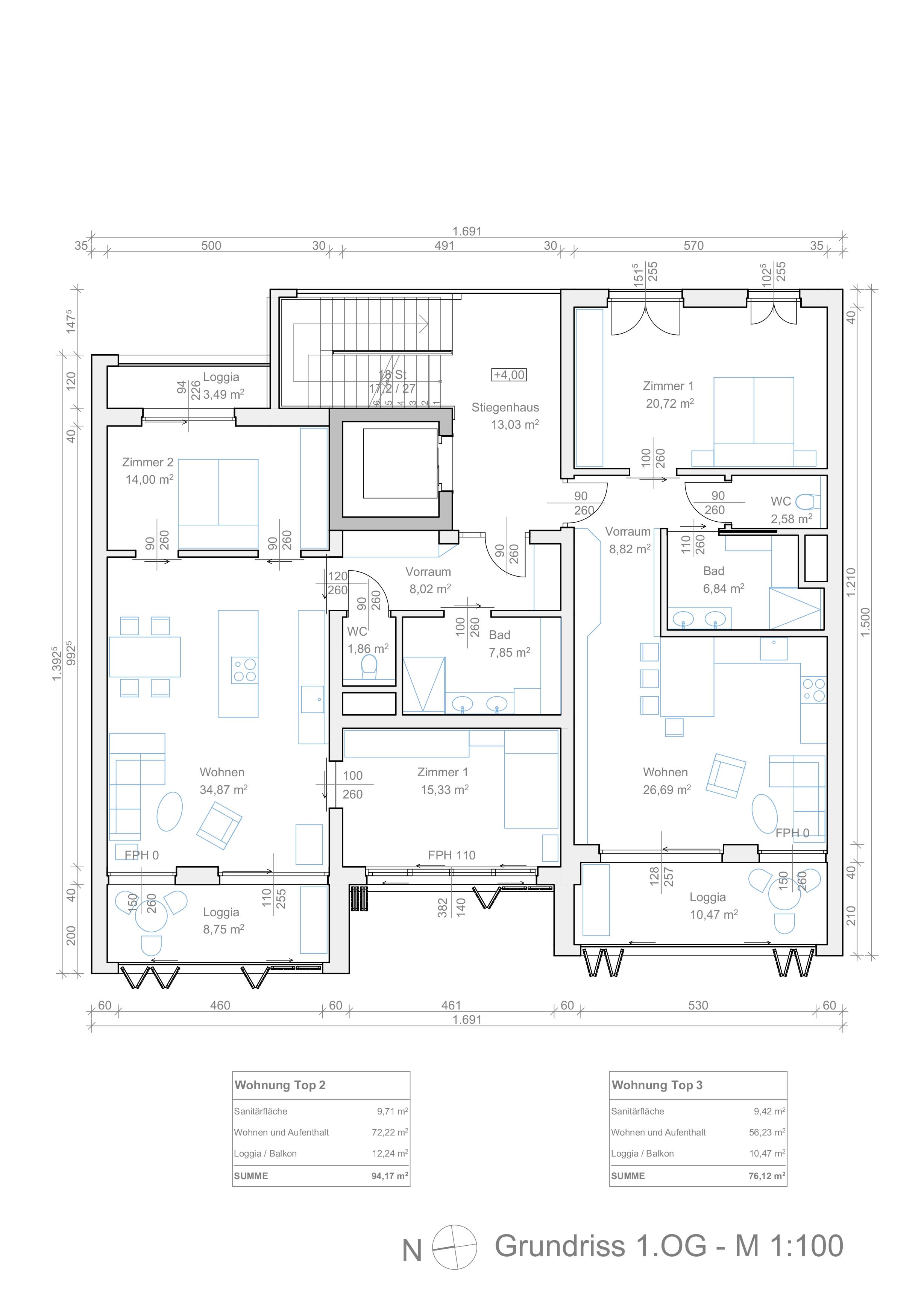
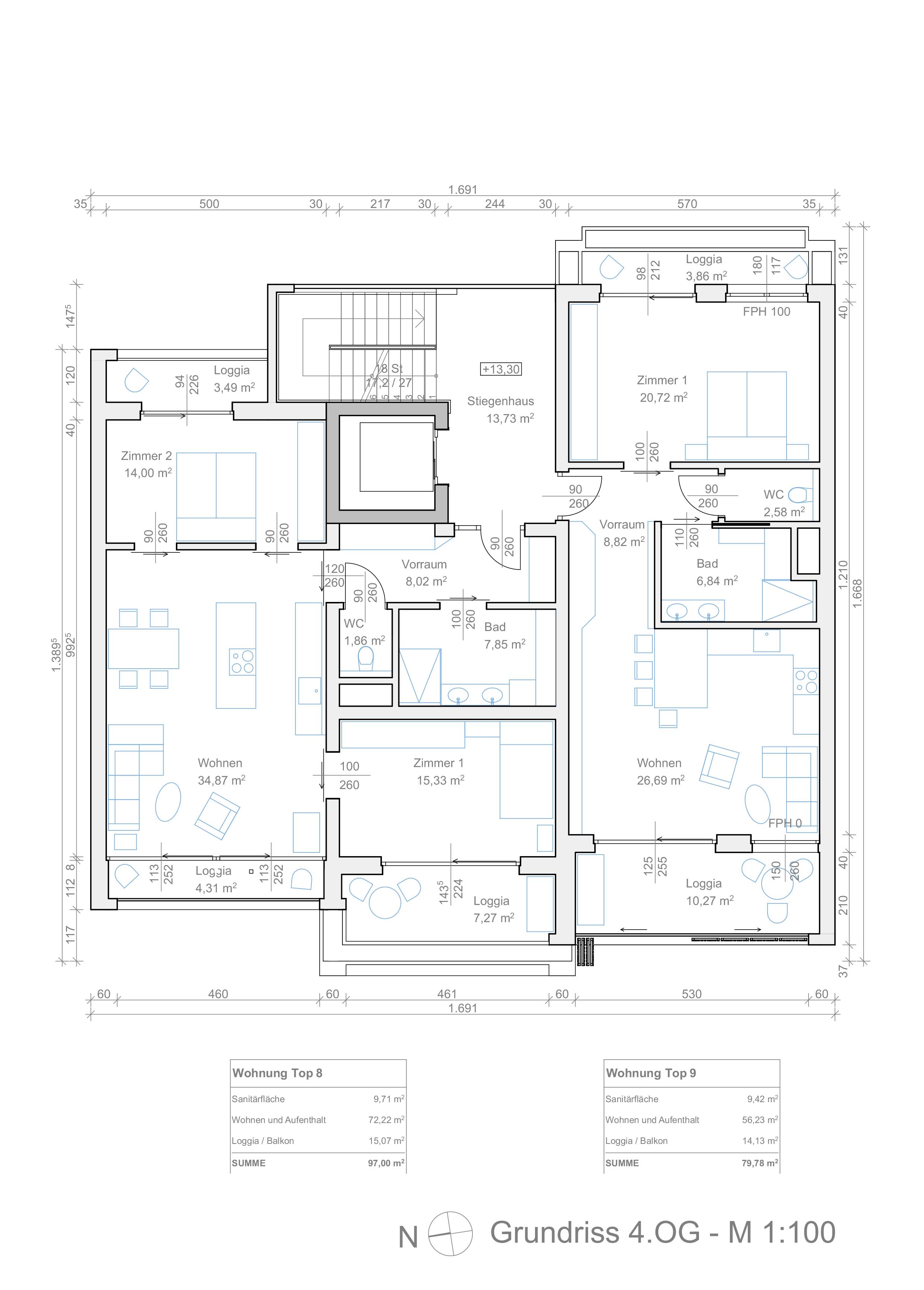
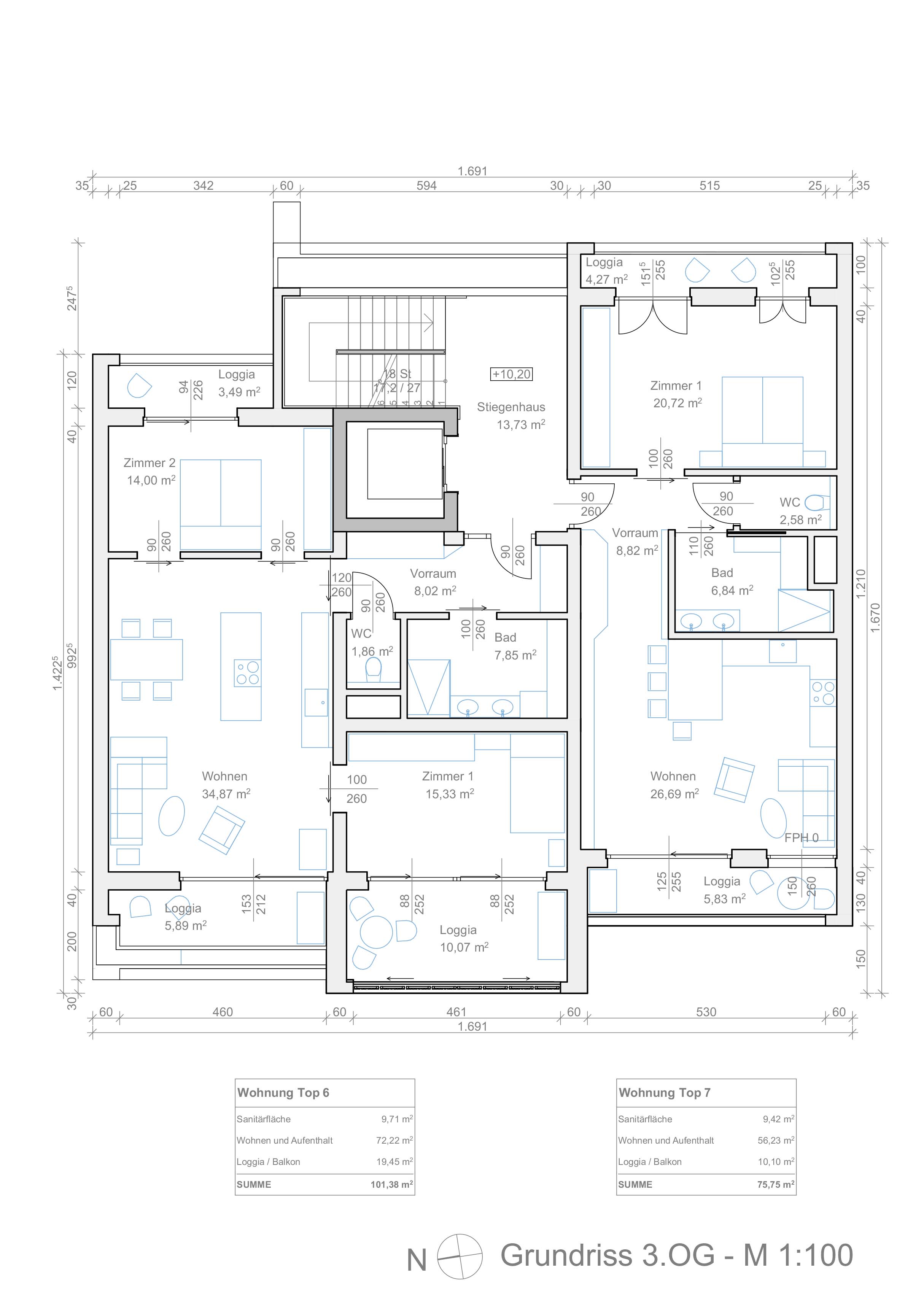
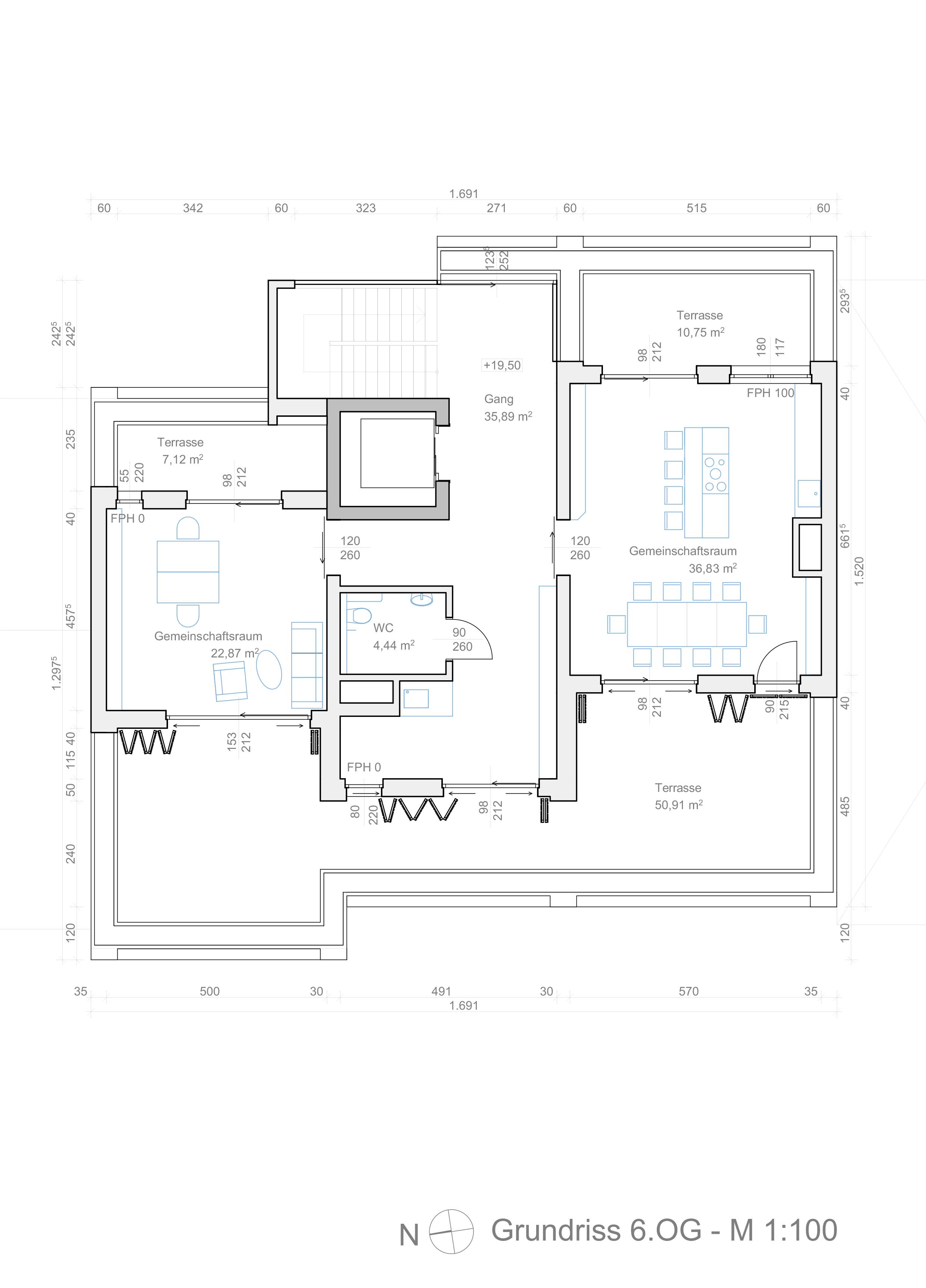
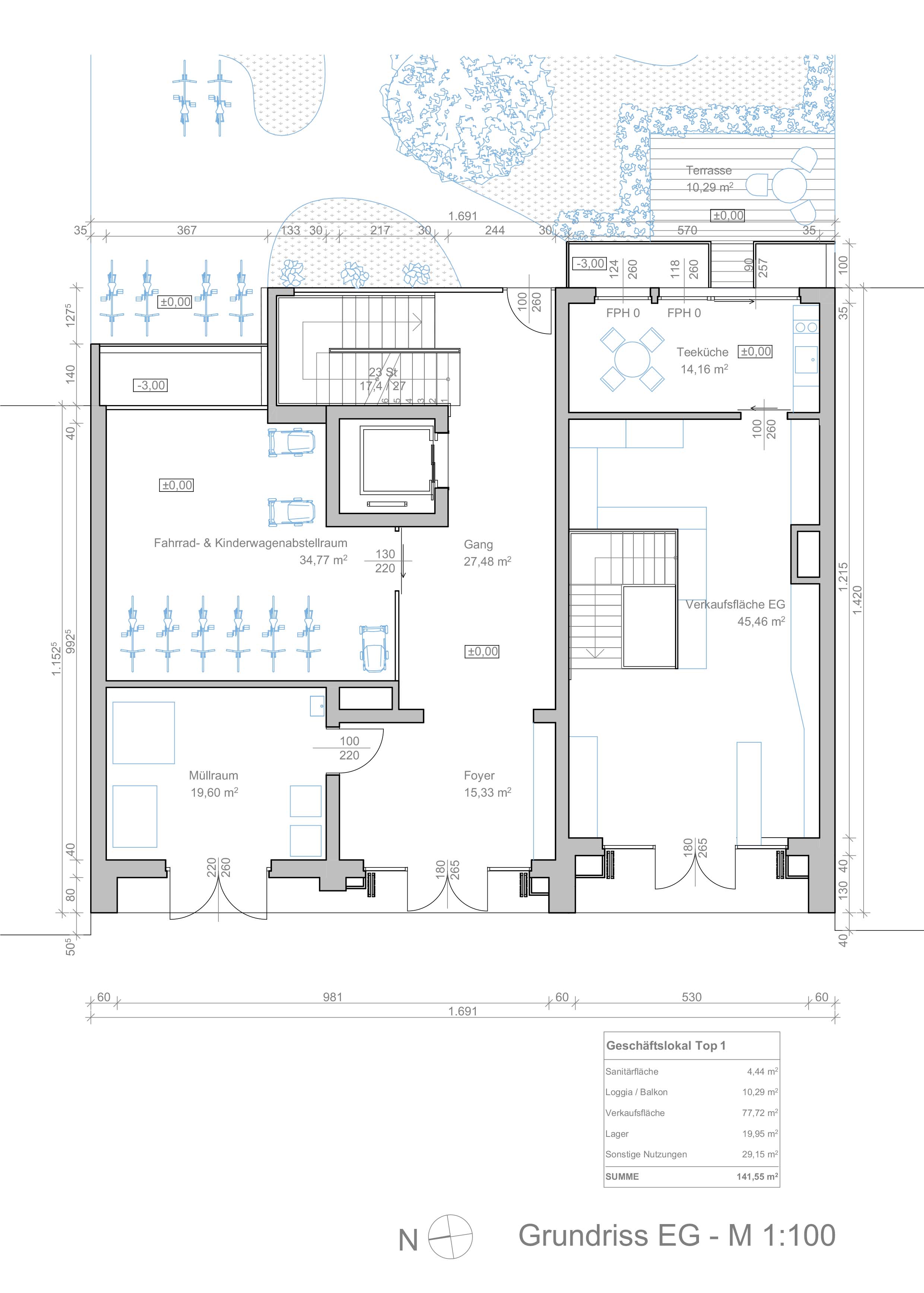
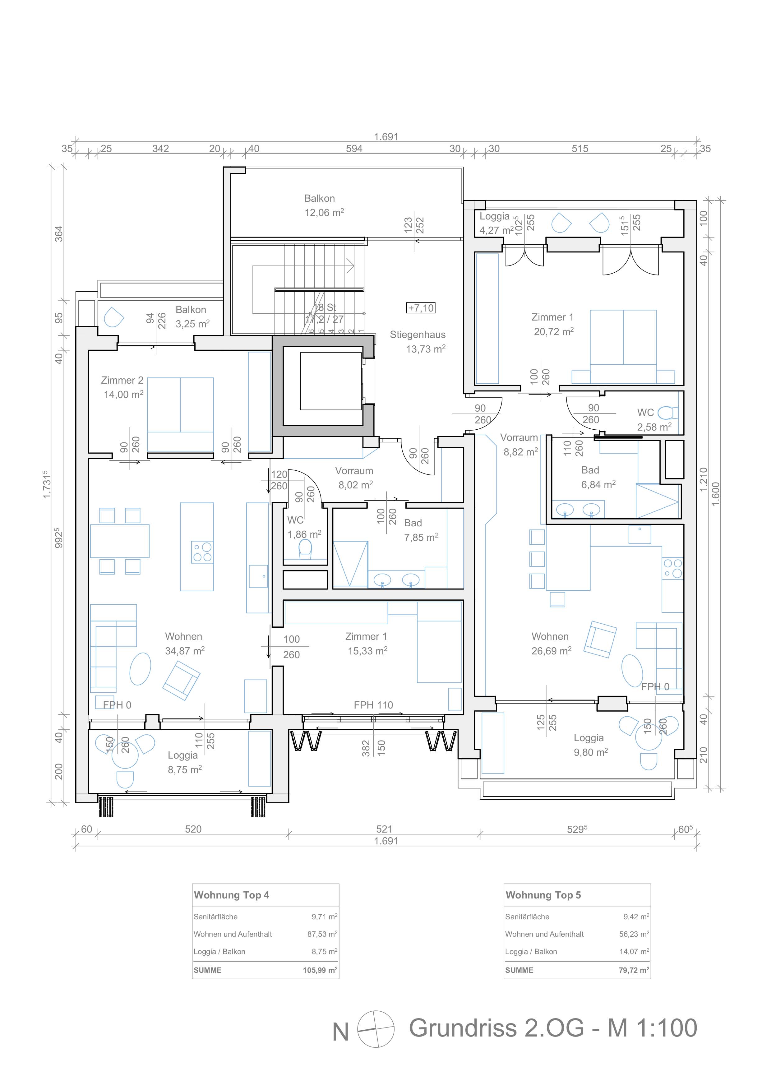
Um dem hohen Ressourcenverbrauch in der Baubranche entgegenzuwirken, ist es essenziell, kreislaufwirtschaftliche Konzepte für einen verantwortungsvollen Umgang mit gebrauchten Materialien und Konstruktionen zu entwickeln. Dabei spielen sowohl das Bauen mit wiederverwendeten Bauteilen als auch das Bauen im Bestand eine zentrale Rolle. Beide Ansätze setzen auf die Nutzung vorhandener Ressourcen, anstatt auf neue Baumaterialien (und lineares Wirtschaften) zurückzugreifen. Vorgefertigte Wohngebäude in Systembauweise existieren in Österreich seit über einem Jahrhundert und müssen nach österreichischen Standards eine Lebensdauer von 100 Jahren (oder mehr) aufweisen. Dies übersteigt die durchschnittliche Nutzungsdauer von 30 bis 50 Jahren. Die Arbeit untersucht anhand theoretischer Überlegungen und bestehender Fertighäuser, wie die Wiederverwendung und Kreislaufführung von modularen Holzfertigteilen am Ende ihres ersten Nutzungszyklus gestaltet werden kann. Für diese Bestrebungen sind klare Informationen über bestehende Bauteile von größter Wichtigkeit.Zu diesem Zweck wurde eine hersteller- und lieferantenunabhängige Datenstruktur entwickelt, mit der Holzfertigteile in Rahmenbauweise qualitativ und geometrisch erfasst und für neue Bauprojekte zugänglich und nutzbar gemacht werden können. Diese Datenstruktur wird im Rahmen dieser Arbeit für Testzwecke auf eine Reihe realer Fallstudiengebäude angewendet; bei einem Gebäude wurde zudem der tatsächliche Rückbau dokumentiert. Um Bauteile unterschiedlicher Hersteller und Lieferanten in zukünftigen Bauprojekten verwenden zu können, werden – basierend auf der beschriebenen Dokumentation – Lösungsvorschläge vorgestellt, die zeigen, wie Bauteile mit unterschiedlichen Aufbauten miteinander kombiniert werden können. Als „Proof of Concept“ dieser Konzepte wird exemplarisch der Entwurf eines mehrgeschossigen Wohnbaus dargestellt.Alle hier hochgeladenen Inhalte sind das eigene Werk der Absolventin oder des Absolventen. 




Studiengang
Architektur
Betreuer*in
Senior Scientist Dipl.-Ing. Dr.techn. Ulrich Pont und Senior Lecturer Dipl.-Ing.in Sigrun Swoboda
Institut für Architekturwissenschaften
Forschungsbereich Bauphysik und Bauökologie und Forschungsbereich Digitale Architektur und Raumplanung
Abschluss
01/2025