Struktur (&) Wandel

Ein adaptives System zur Nachverdichtung im urbanen Kontext der Gründerzeit

Matthias Treviranus

Unsere Gesellschaft verändert sich stetig. Daher braucht es eine flexible Architektur, die den sich verändernden sozialen, funktionalen und räumlichen Bedürfnissen gerecht wird. Gerade im urbanen Kontext wechseln Gebäude häufig ihre Nutzer_innen und müssen dem Wandel des städtischen Lebens standhalten.

Als positives Beispiel zeigt die Stadt Wien, deren Stadtbild noch heute von vielen Gebäuden des 19. Jahrhunderts geprägt ist, wie Architektur Veränderungen über einen langen Zeitraum ermöglicht. Durch die tiefgehende Untersuchung der historischen und architektonischen Gegebenheiten Wiens sowie die akribische Analyse und Gegenüberstellung anpassungsfähiger Referenzprojekte werden in verschiedenen Maßstäben Faktoren erforscht, die diese adaptiv machen.

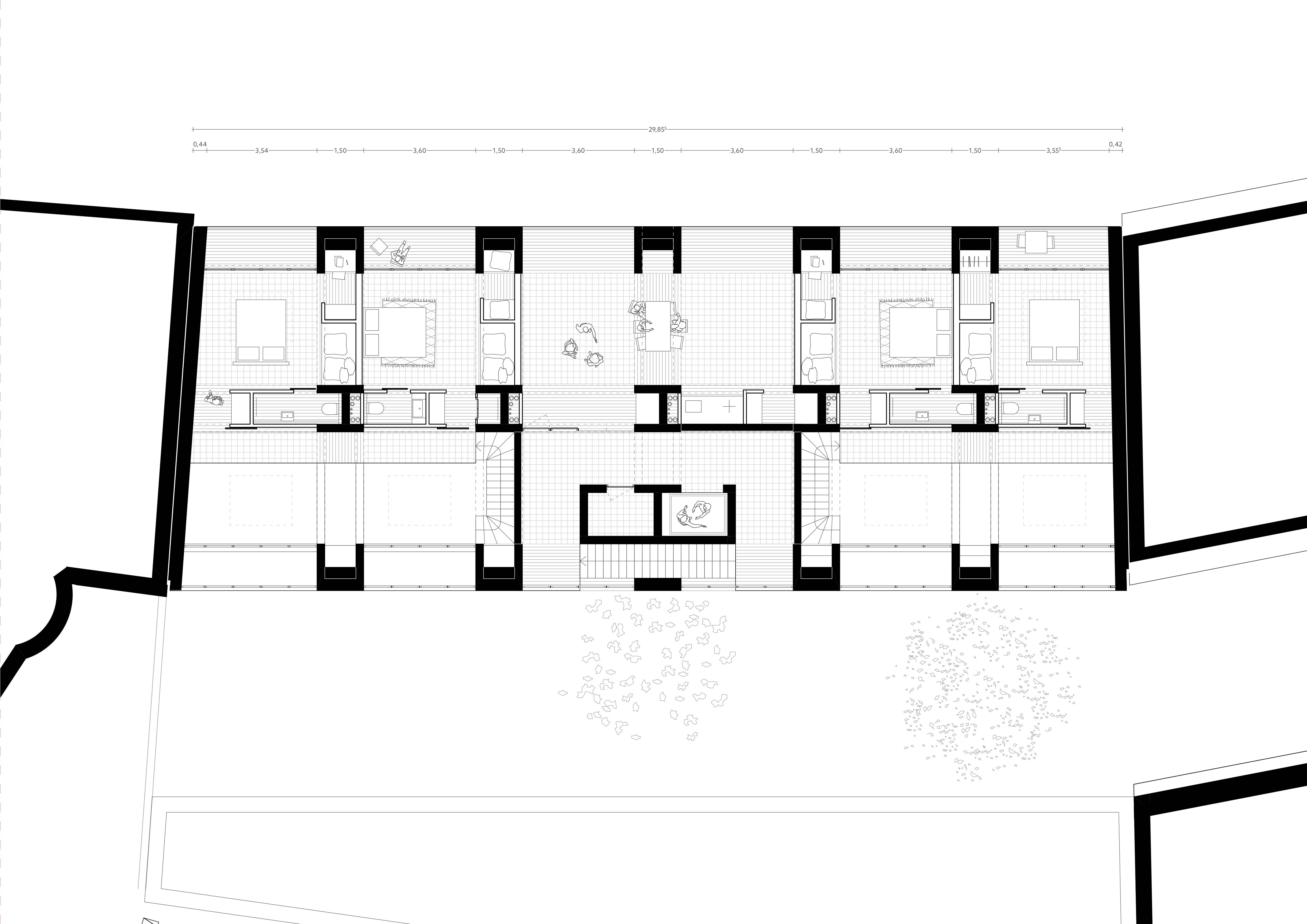
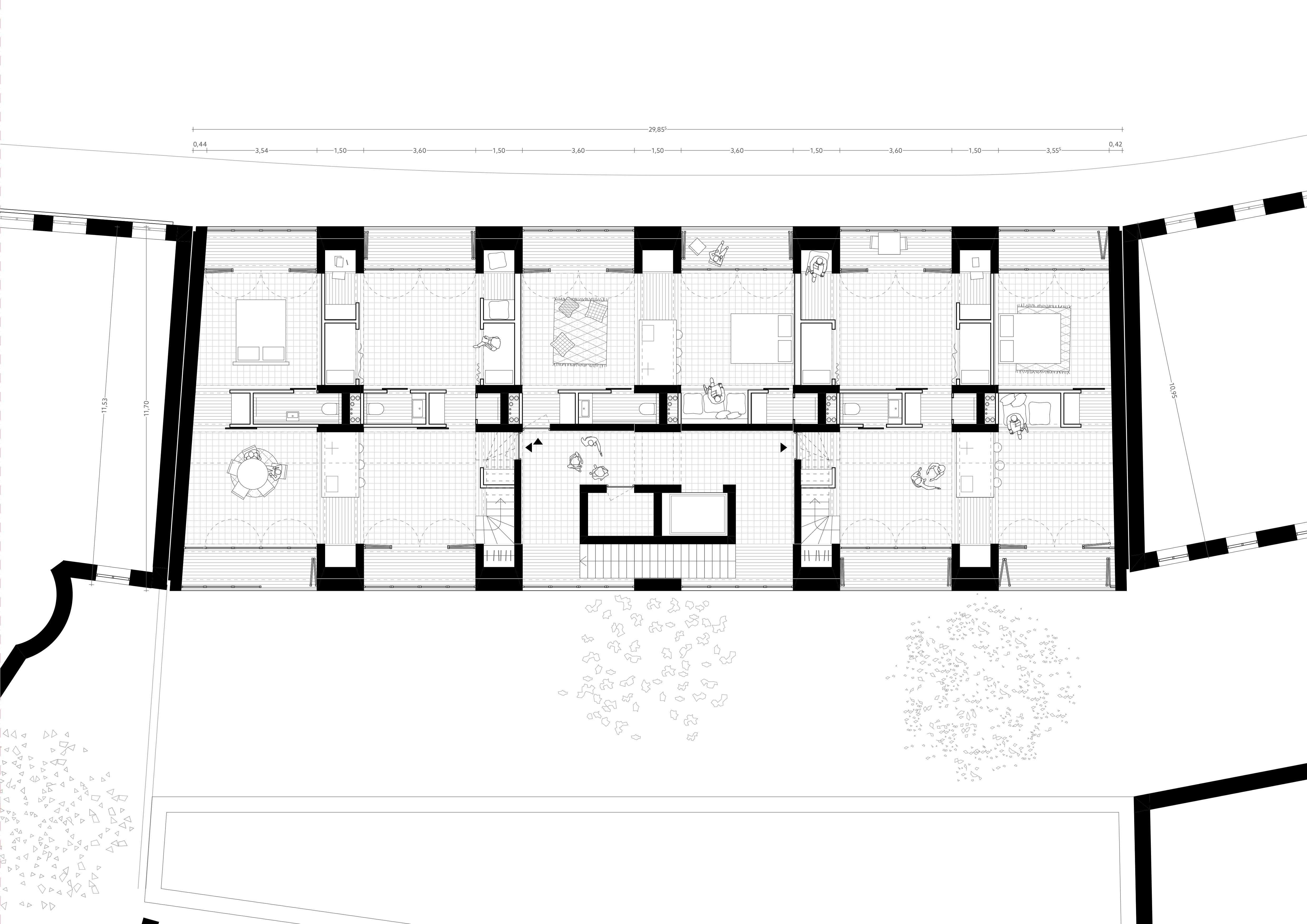
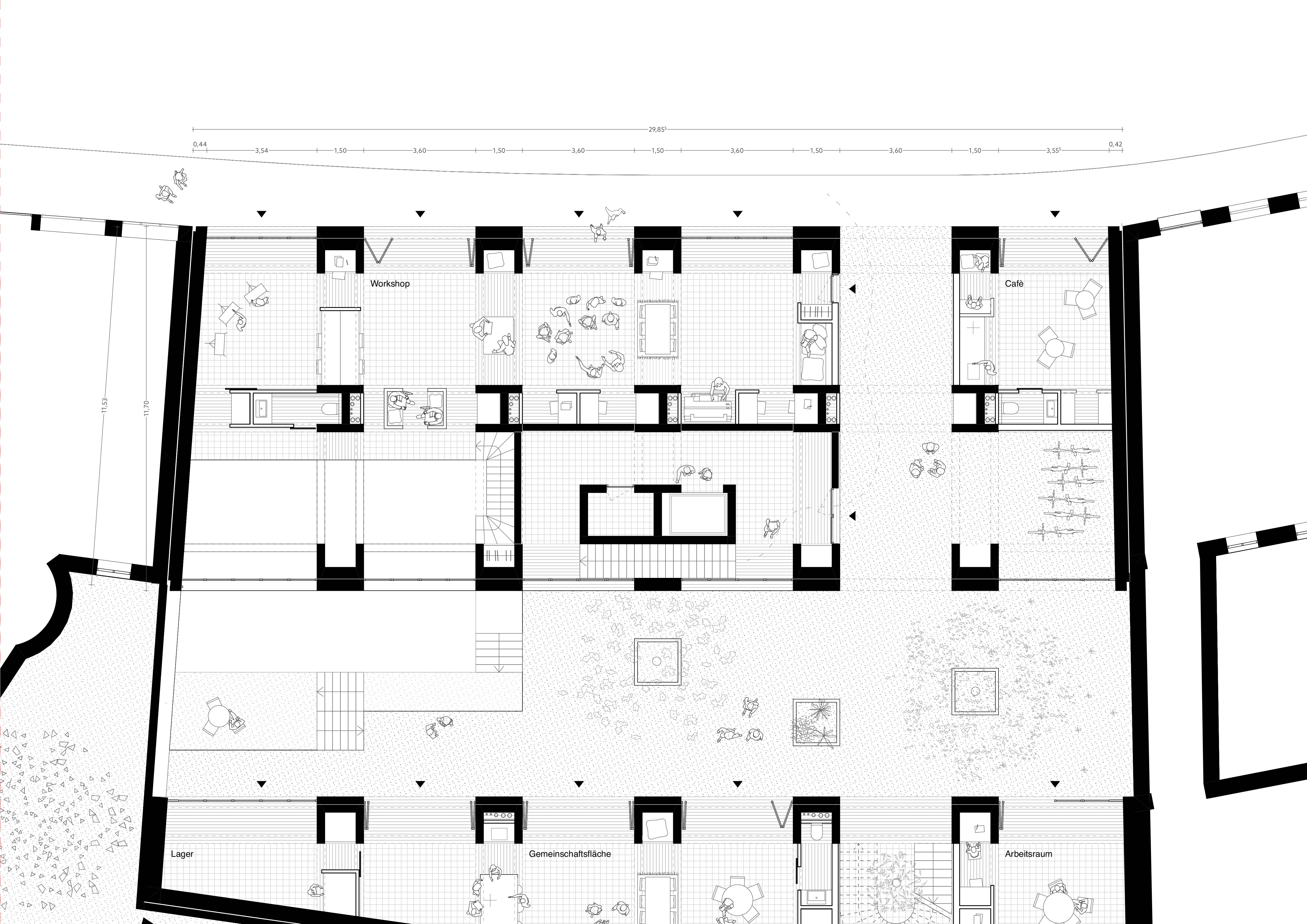
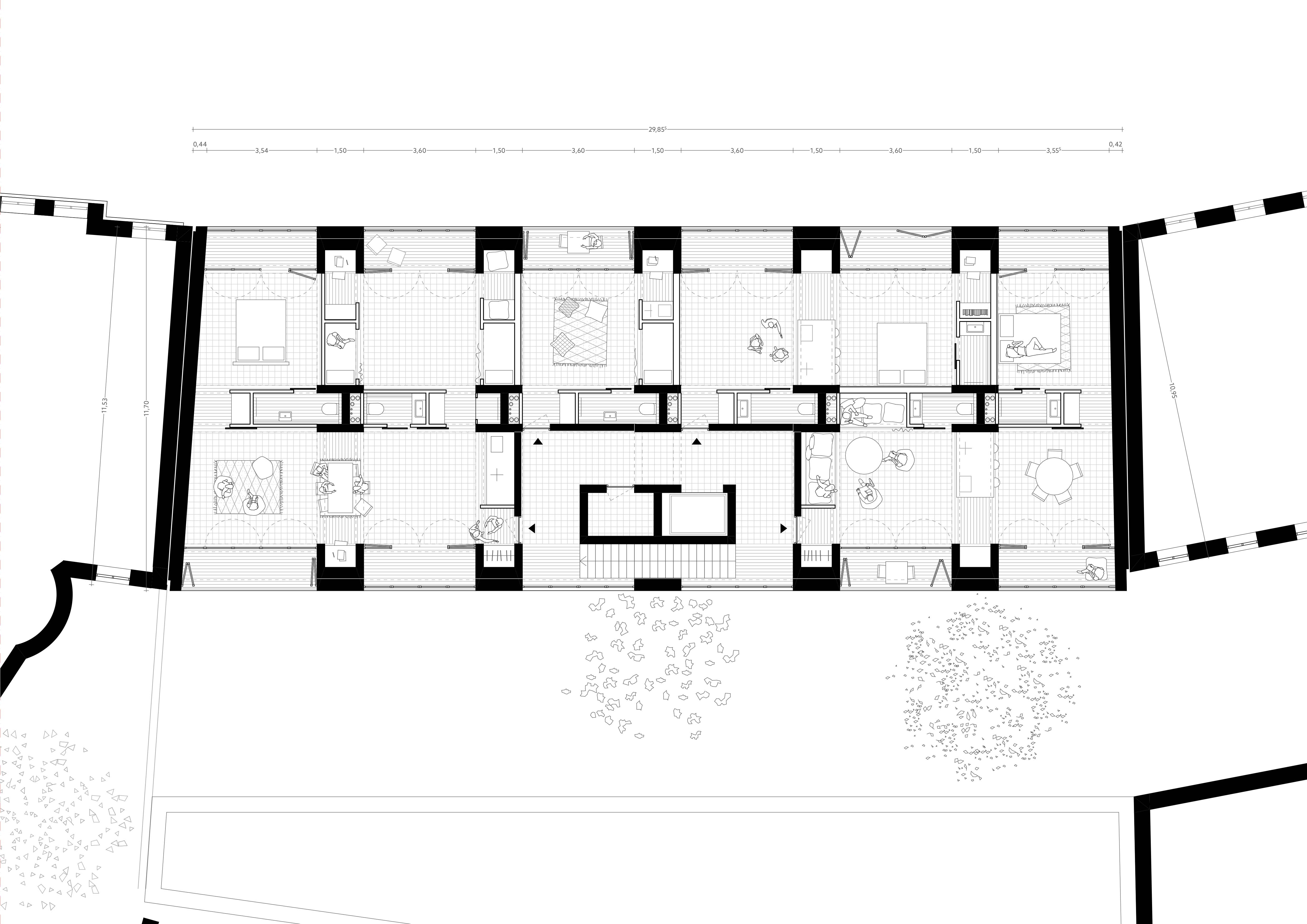
Der Fokus des Kontextes liegt dabei auf den Baulücken im dicht bebauten Wiener Stadtgebiet, die ein hohes Potenzial für effiziente Nachverdichtung und die Schaffung von Wohnraum darstellen.

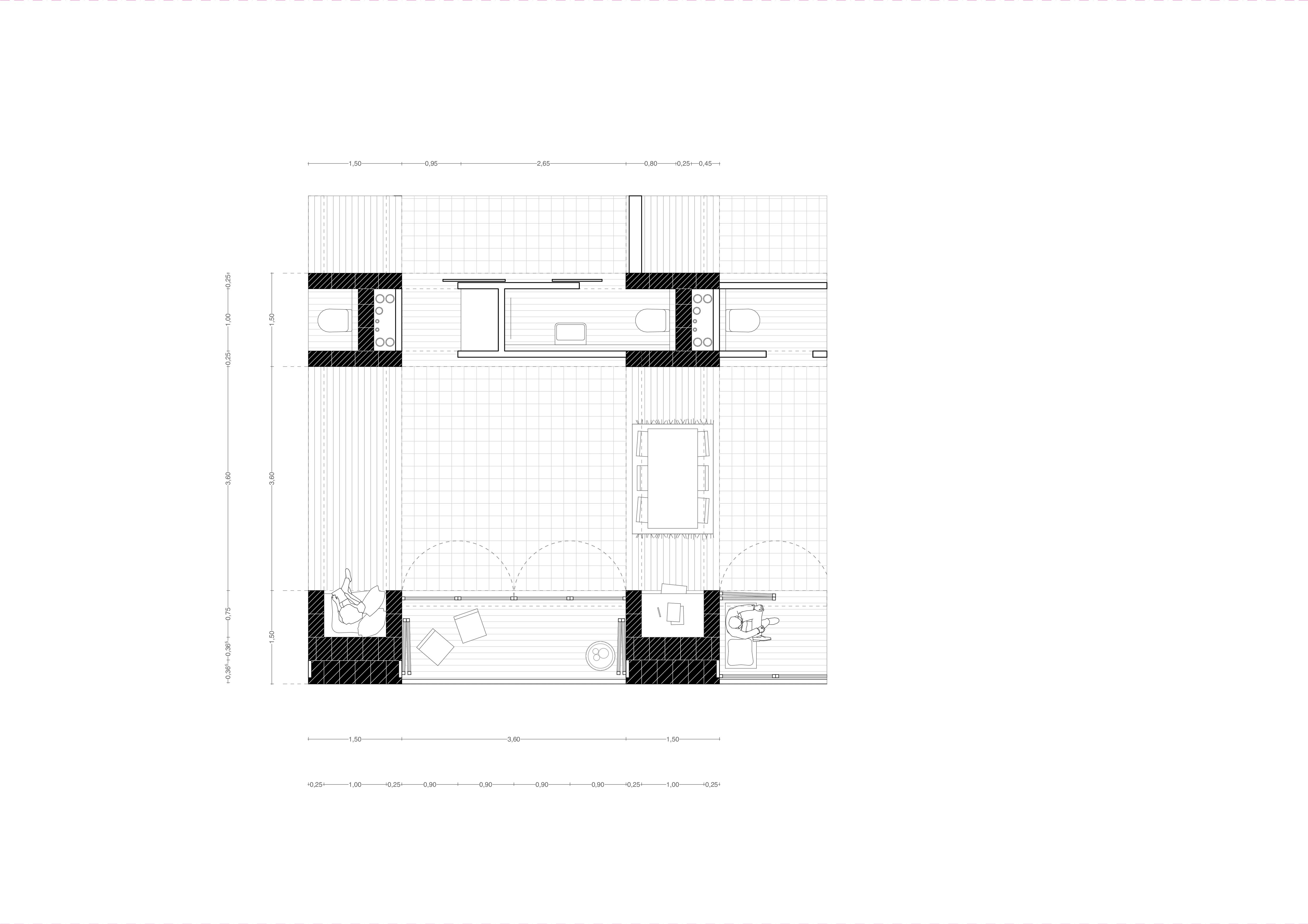
Durch einen prototypischen Entwurf werden die gewonnenen Erkenntnisse als multiplizierbares System umgesetzt. Dieses dient vor allem als skalierbares Konzept für die räumliche und strukturelle Organisation, das über Variablen an den Kontext angepasst werden kann und so auf weitere Grundstücke übertragen wird. Das System bildet den Rahmen für eine individuelle Gebäudegestaltung und ist darauf ausgelegt, größtmögliche Flexibilität in der Nutzung bei gleichzeitig überschaubarem baulichen Aufwand für Veränderungen zu gewährleisten. Daher ist das Bauwerk nicht als fertiges Objekt zu sehen, sondern als Prozess, der erst durch die Nutzer_innen weiterentwickelt wird. Durch die Auslegung auf Resilienz und Langlebigkeit ist der Entwurf somit ein Ansatz für die nachhaltige Gebäudeentwicklung der Zukunft.

Alle hier hochgeladenen Inhalte sind das eigene Werk der Absolventin oder des Absolventen.



Studiengang
Architektur
Betreuer*in
Univ.Prof.in Dipl.-Ing.in M.Arch. Tina Gregoric Dekleva und Senior Artist Arch.in Dipl.-Ing.in Katharina Urbanek
Institut für Architektur und Entwerfen
Forschungsbereich Gebäudelehre und Entwerfen
Abschluss
06/2024